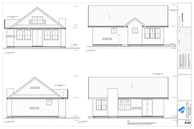
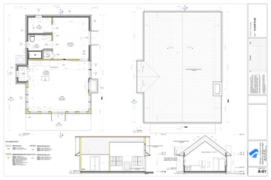
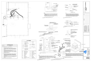
VHP 159

As-Built Residential Unit model

Gallery

These projects where delivered in record time to be constructed and overseen by third parties. This demanded a very high level of detail to optimize resources and eliminate re-proceses