

Highlights










Sustainable Design
A showcase of my academic architectural projects at the University of Edinburgh


London - Office Building
Detailed design of a sustainable community center project.


Hannover Residential Project
Innovative design for a modern urban housing project.




Silverknows - Edinburgh
Research project on historical architecture and preservation techniques.
Drem - Urban Project
Conceptual design for a cultural center in the city.
→
→
→
→
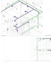
BIM Modelling & Coordination
BIM Modelling - Technical detailing
Soy un arquitecto apasionado por la educación, y aquí muestro mis trabajos académicos, reflejando mi creatividad y habilidades en el diseño arquitectónico.






MEP Modelling - Clash Coordination
Estos trabajos académicos destacan mis conocimientos y mi desarrollo profesional en el campo de la arquitectura, demostrando mi compromiso con la excelencia.








