
Residential Project - De Cambil 93 Smart House
High-End Residential Project
2.700 Sqm of luxurious materials and sound design brought to one of the most exclusive neighborhoods in Bogotá, Colombia


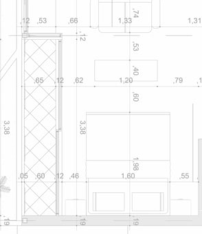
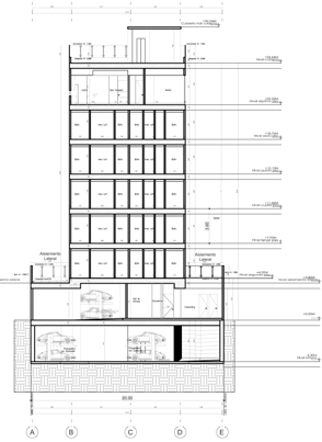
Planning - Construction simulation
The terrace of De Cambil 93 Smart House is designed in a conceptual unit, which invites you to enjoy the open sky and will have:
BBQ and Teppanyaki area
Bonfire Zone
Outdoor Projection Space
Multifunctional gym
Party Room
Amenities
Some characteristics of this project
Lobby with a height of 3.80 m
Co-Working
Auxiliar bathrooms
Mailbox
Elevator waiting room
Flexible, modern spaces, full of design, for those who enjoy details, with 1, 2 or 3 bedrooms.
Each space in your new apartment reflects spaciousness, with heights of 2.75 m.

Gallery
Some of the results of this beautiful process cover: basic models to renders, animations, constructive plans, and technical details.
































